電話でのお問い合わせは092-600-1856
〒811-2405 福岡県糟屋郡篠栗町大字篠栗2774-2

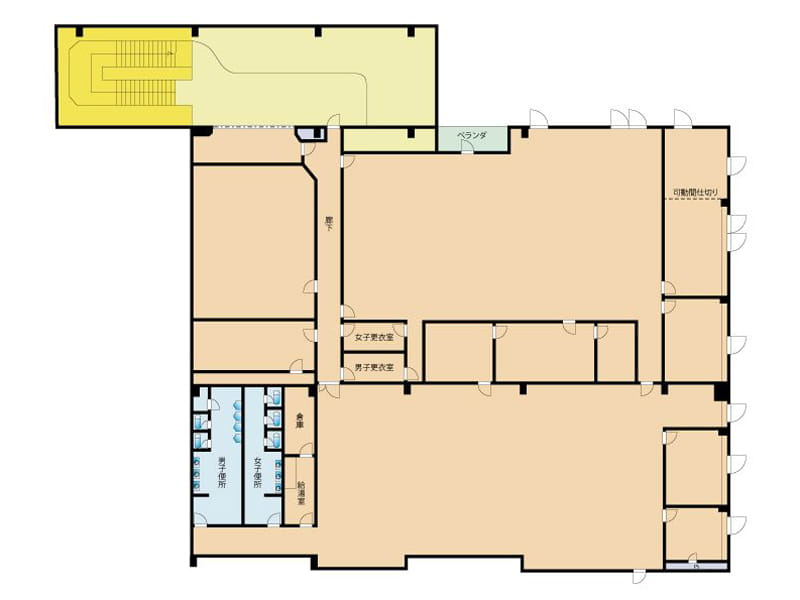
| 名称 | 井相田三丁目事務所 |
| 所在地 | 福岡県福岡市博多区井相田3丁目 2-1 |
| 交通アクセス | 西鉄天神大牟田線雑餉隈駅 徒歩:13分/986m 西鉄天神大牟田線桜並木駅 徒歩:13分/994m 鹿児島本線南福岡駅 徒歩:19分/1487m |
| 使用面積 | 866.55㎡ (約262.13坪) |
| 敷金 | 有 6ヶ月 314.4万円 |
| 礼金 | 無 |
| 建物構造 | 鉄骨造 |
| 階建・階 | 地上3階 |
| 築年月日 | 1988[S63]年10月 (築37年5ヶ月) |
| 駐車場 | 別途相談可 |
| 接道状況 | - |
| 賃貸区分 | - |
| 契約期間 | 2年 |
| その他 | - |
| 事務所 賃借依頼のお問合わせはこちら |